Курсовая работа: Определение наличия угрозы людям и чужому имуществу в случае пожара
Министерство Российской Федерации
по делам гражданской обороны, чрезвычайным ситуациям
и ликвидации последствий стихийных бедствий
Ивановский институт Государственной противопожарной службы
Кафедра управления в
Государственной противопожарной службы
Курсовая работа
по учебной дисциплине: «Государственный пожарный
надзор»
на тему: «Определение наличия угрозы людям и чужому имуществу в случае пожара»
Иваново 2009 г.
Содержание
1. Исходные данные
2. Определение наличия угрозы людям в помещении в
случае пожара
2.1 Определение расчётного времени эвакуации
людей
2.2 Определение необходимого времени эвакуации
людей
3. Определение наличия угрозы чужому имуществу в
случае пожара
3.1 Расчёт температурного режима при свободно
развивающемся пожаре
3.1.1 Определение вида пожара в помещении
3.1.2 Расчёт среднеобъёмной температуры в
помещении
3.2 Определение возможности распространения
пожара и оценка устойчивости строительных конструкций здания
4. Предварительное планирование боевых действий
членов добровольных противопожарных формирований по тушению пожара первичными
средствами пожаротушения в помещении
4.1 Определение резерва времени для работы со
средствами пожаротушения
4.2 Определение площади зоны риска
4.3 Выбор и определение необходимого количества
средств пожаротушения
4.3.1 Выбор и определение необходимого количества
огнетушителей для тушения пожара
4.3.2 Выбор и определение необходимого количества
пожарных кранов для тушения пожара
4.4 Определение количества и порядка действий
членов добровольных противопожарных формирований при тушении пожара
5. Графическая часть
Выводы
Литература
1.
Исходные данные
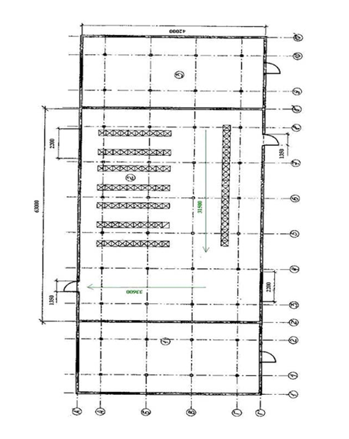
Складской
корпус представляет собой одноэтажное здание, разделённое перегородками на три
помещения. Схема складского корпуса представлена на рис. 1.1. Необходимые
расчёты и выводы проводятся для складского помещения №2, в котором хранятся
материальные ценности на стеллажах. Люди в помещении находятся на нулевой
отметке. Расположение пола в помещении – горизонтальное. Помещение оборудовано
внутренним противопожарным водопроводом.
Характеристика
помещения
– размеры
помещения в плане: 75×50×5,7 м;
– вид
пожарной нагрузки: органическое стекло;
– количество
пожарной нагрузки: 12300 кг;
– ширина
оконных проёмов b1: 2,2 м;
– ширина
оконных проёмов b2: 2,2 м;
– высота
оконных проёмов: 3,5 м;
– количество
людей в помещении: 16 чел.;
Характеристика
путей эвакуации
– ширина
дверных проёмов а: 1,8 м;
– высота
дверных проёмов: 2,5 м;
– длина
первого участка эвакуационного пути l1: 0,65·А
– ширина
первого участка эвакуационного пути δ1: 1,5 м;
– длина
второго участка эвакуационного пути l2: 0,75·L
– ширина
первого участка эвакуационного пути δ2: 1,2 м;
Характеристика
строительных конструкций
– тип
перегородки: С-115 (ГКЛ);
– вид/
толщина огнезащитного покрытия ферм: САЭ – 5Б/1;
– вид/
толщина огнезащитного покрытия колонн: без огнезащиты;
Характеристика
средств пожаротушения
– длина
рукава пожарного крана: 10 м;
– диаметр
спрыска пожарного ствола ПК: 19 мм;
– диаметр
пожарного крана: 50 мм;
– напор
у пожарного крана: 10,4 м;
Схема
помещения







2.
Определение наличия угрозы людям в помещении в случае пожара
2.1
Определение расчётного времени эвакуации людей
Расчётное
время эвакуации людей из помещений и зданий устанавливается по расчёту времени
движения одного или нескольких людских потоков через эвакуационные выходы от
наиболее удалённых мест размещения людей.
Определение
расчётного времени эвакуации проводим в соответствии с методикой, изложенной в п. 2.4.
приложения 2 ГОСТ 12.1.004–91 «Пожарная безопасность. Общие требования».
При расчёте
весь путь движения людского потока разбиваем на три участка с длиной l1; l2; l3 и шириной δ1;
δ2; δ3 соответственно. Конечным, 3-м участком
является эвакуационный выход из помещения. Длина пути в дверном проёме, равная l3, принимается равной 0,5 м.
Расчётное
время эвакуации людей tр следует определять как сумму времени движения
людского потока по заданным участкам пути:
(1),
где t1, t2, t3 – время движения
людского потока на первом, втором, третьем участках соответственно;
tнэ – интервал времени от
возникновения пожара до начала эвакуации людей, принимаем tнэ=0,5 мин., как для
здания без системы оповещения.
Определяем
время движения людского потока по первому участку пути:
(2),
где l1 – длина первого участка
пути;
v1 – скорость движения
людского потока по горизонтальному пути на первом участке. Значение v1 определяем в зависимости
от плотности людского потока D1 на первом участке по табл. 2 прил. 2 ГОСТ
12.1.004–91 «Пожарная безопасность. Общие требования».
Определяем
плотность людского потока D1 на первом участке:
(3),
где N1 – число людей на первом
участке, чел.;
f – средняя площадь
горизонтальной проекции человека. Для взрослого человека в зимней одежде f=0,125 м2;
δ1
– ширина первого участка пути, м.

По табл. 2 прил.
2 ГОСТ 12.1.004–91 «Пожарная безопасность. Общие требования» определяем: для D1=0,029 (м2/м2)
v1=100 (м/мин).

Скорость vi движения людского потока
на участках пути, следующих после первого, принимаем по табл. 2 прил. 2 ГОСТ
12.1.004–91 «Пожарная безопасность. Общие требования» в зависимости от значения
интенсивности движения людского потока qi по каждому из этих
участков.
Для 1-го
участка пути:

Для 2-го
участка пути:
(4),

По табл. 2 прил.
2 ГОСТ 12.1.004–91 «Пожарная безопасность. Общие требования» определяем: для q2=1,58 (м/мин) v2=100 (м/мин).
По формуле
(2):
.
Для 3-го
участка пути:
(5),

По табл. 2 прил.
2 ГОСТ 12.1.004–91 «Пожарная безопасность. Общие требования» определяем: для q3=1,05 (м/мин) v3=100 (м/мин).
По формуле
(2):
.
По формуле
(1):
.
Таким
образом, расчётное время эвакуации людей из помещения склада составляет 0,79
(мин).
2.2 Определение
необходимого времени эвакуации людей
Необходимое
время эвакуации рассчитывается как произведение критической для человека
продолжительности пожара на коэффициент безопасности. Предполагается, что
каждый опасный фактор воздействует на человека независимо от других.
Расчёт
необходимого времени эвакуации проводится по методике, изложенной в п. 2.5.
приложения 2 ГОСТ 12.1.004–91 «Пожарная безопасность. Общие требования».
Рассчитываем
значения критической продолжительности пожара:
– по
повышенной температуре:
(6),
где t0 – начальная температура
воздуха в помещении, t0=37ºС;
n – показатель степени,
учитывающий изменение массы выгорающего материала во времени, n=3;
В-размерный
комплекс, зависящий от теплоты сгорания материала и свободного объёма
помещения,
(7),
где Ср
– удельная изобарная теплоёмкость газа, Ср=0,001068 (МДж/кг/К);
φ –
коэффициент теплопотерь, φ=0,6;
η –
коэффициент полноты горения, η=0,95;
Q – низшая теплота
сгорания материала, по прил. 3 ист. [7] Q=26,4 МДж/кг;
V – свободный объём
помещения. V=
80% от (75×50×5,7)=17100 (м3);
;
А – размерный
параметр, учитывающий удельную массовую скорость выгорания горючего материала и
площадь пожара, кг/сn;
(8),
ν –
линейная скорость распространения пламени, м/с; по прил. 3 ист. [7] для данной
горючей нагрузки ν=0,008 м/с;
ψF – удельная массовая
скорость выгорания, кг/м2с. по прил. 3 ист. [7] для данной горючей
нагрузки ψF=0,0041 кг/м2с;
кг/м2с;
z – безразмерный параметр,
учитывающий неравномерность распределения ОФП по высоте помещения.
(9),
где h – высота рабочей зоны,
м;
Н – высота
помещения, м. Н=5,7 м;
(10),
где hпл – высота площадки, на
которой находятся люди. hпл=0 м;
δ –
разность высот пола. Δ=0 м.;

;
По формуле
(6):

– по
потере видимости:

(11),
где а – коэффициент отражения предметов на путях эвакуации;
При отсутствии специальных требований значение а принимается равным 0,3;
Е – начальная освещенность, лк. При отсутствии специальных требований
значение Е принимается ранным 50 лк.;
lпр – предельная дальность видимости в дыму, м. При отсутствии
специальных требований значение lпр принимается равным 20 м.;
Dm – дымообразующая способность горящего материала, Нп м2/кг.
По прил. 3 ист. [7] для данной горючей нагрузки Dm= 78Нп м2/кг;
По формуле (11):
сек
– по
пониженному содержанию кислорода:
(12),
где LО2 – удельный расход кислорода, кг/кг. По прил. 3 ист. [7] для данной
горючей нагрузки LО2=2,09 кг/кг;
По формуле (12):

Т.к. под знаком логарифма получается отрицательное число, то
данный ОФП не представляет опасности.
– по предельно допустимому содержанию СО2 в
помещении:
(13),
где XСО2 – предельно допустимое содержание CO2 в помещении, кг/м3.
XСО2=0,11 кг/м2;
LСО2 – удельный выход CO2 при сгорании 1 кг пожарной нагрузки. По прил. 3
ист. [7] для данной горючей нагрузки LСО2=1.795 кг/кг;
По формуле (13):

Т.к. под
знаком логарифма получается отрицательное число, то данный ОФП не представляет
опасности.
– по предельно допустимому содержанию СО в помещении:
(14),
где XСО – предельно допустимое содержание CO в помещении, кг/м2.
XСО=1,16·10-3
кг/м3;
LСО – удельный выход CO при сгорании 1 кг пожарной нагрузки. По прил. 3
ист. [7] для данной горючей нагрузки LСО=0,1266 кг/кг;
По формуле (14):

Т.к. под
знаком логарифма получается отрицательное число, то данный ОФП не представляет
опасности.
Из полученных
в результате расчётов значений критической продолжительности пожара выбираем
минимальное:
(15),

Таким
образом, потеря видимости в помещении наступает через 288 сек после начала
пожара.
Необходимое
время эвакуации людей из помещения рассчитываем по формуле:
(16),

3.
Определение наличия угрозы чужому имуществу в случае пожара
Для оценки угрозы чужому имуществу необходимо определить пожарную
опасность для несущих конструкций и возможность распространения пожара за
пределы одного помещения. Для этого необходимо знать температурные режимы при
возможном пожаре, температуры на поверхностях ограждающих конструкций,
зависящие от пожарной нагрузки и объемно-планировочных решений принятых на
данном объекте.
3.1 Расчёт
температурного режима при свободно развивающемся пожаре
3.1.1 Определение вида возможного пожара в помещении
Вычисляем
объём помещения V:
V=75×50×5,7=21375 м3.
Рассчитываем
проёмность помещений П:
Т.к. V=21375 м3>10 м3,
(17),
где Аi – площадь i-го проёма помещения, м2,
hi – высота i-го проёма помещения, м,
S – площадь пола в
помещении, м2;
По формуле
(18):
;
По приложению
3 ист. [7] определяем количество воздуха V0, необходимое для
сгорания 1 кг материала пожарной нагрузки. V0=7,6 нм3/кг.
Определяем удельное критическое количество пожарной нагрузки qкр.к., кг/м2, для
кубического помещения объемом V, равным общему исследуемого помещения:
(18),

Вычисляем удельное значение пожарной нагрузки qк, кг/м2
для исследуемого помещения:
(19),
где S – площадь пола помещения, равная S=V0.667; S=(21375)0,667=772,7м2;
А – суммарная площадь проёмов в помещении, м2. А=163м2;
QрНд – низшая теплота сгорания органического стекла, равная 26,4 МДж/кг;
По формуле (19):
;
Сравнивая значения qкр.к. и qк, получаем, что qкр.к=0,755< qк=4, следовательно, в
помещении будет пожар, регулируемый вентиляцией (ПРВ).
3.1.2 Расчёт среднеобъёмной температуры
Определяем максимальную среднеобъёмную температуру Тmax:
Для ПРВ:
(20),
где q – количество пожарной
нагрузки, отнесённое к площади пола, кг/м2;
Т0
– начальная среднеобъёмная температура в помещении, равная 37 0С;

Определяем
характерную продолжительность объёмного пожара:
(21),
где 
nср – удельная массовая
скорость выгорания органического стекла, nср=0,24 кг/(м2мин);
По формуле (21):

Определяем
время достижения максимального значения среднеобъёмной температуры tmax: для ПРВ tmax=tп=1,07 ч=64,2 мин.
Определяем
изменение среднеобъёмной температуры (Т, 0С) при объёмном свободно
развивающемся пожаре на характерных интервалах времени t, необходимых для
построения графика температурного режима при пожаре в помещении:
(22),
откуда
(23),
где 
t={21,1; 43,0; 64,2; 85,3;
107,2; 128,4; 160,5; 192,6;}, мин;
Подставляя
значения t
в формулу (23), получаем:








По полученным
значениям строим график температурного режима при пожаре в помещении (рис. 3.1).
3.2
Определение возможности распространения пожара и оценка устойчивости
строительных конструкций здания
Исходя из определения предела огнестойкости, пожар может
распространиться на соседнее помещение в случае потери целостности перегородки
и (или) достижения на ее необогреваемой поверхности температуры Т ≥
Тсв, для древесины Тсв= 220 0С.
Огнестойкость несущих металлических конструкций утрачивается
вследствие снижения при нагреве прочности и упругости металла, а также за счет
развития его пластических и температурных деформаций. Под воздействием этих
факторов предел огнестойкости конструкции наступает или в результате потери
прочности, или за счет потери устойчивости. Тому и другому случаю соответствует
критическая температура, которая в общем случае зависит от вида конструкции, ее
размеров, марки металла, схемы опирания и рабочей (нормативной) нагрузки.
Минимальное значение критической для металла температуры принимают 500 °С.
Для определения возможности распространения пожара за пределы
помещения №2 и устойчивости несущих элементов конструкции, на графике
температурного режима при пожаре в помещении (рис. 3.1) отмечаем
критические температуры (220 и 500 °С) и определяем время от начала пожара
до окончания воздействия критических температур:
– время от начала пожара до окончания воздействия на
конструкции температуры 220 0С составляет 205 мин.;
– время от начала пожара до окончания воздействия на
конструкции температуры 500 0С составляет 160 мин.;
Определяем предел огнестойкости ограждающих и несущих конструкций
помещения по прил. 3 ист. [7]:
– для перегородки типа С-115 (ГКЛ) предел огнестойкости
составляет 75 мин.;
– для фермы покрытия САЭ – 5Б/1 предел огнестойкости составляет
45 мин.;
– для колонны без огнезащитного покрытия предел огнестойкости
составляет 30 мин.;
Сравниваем пределы огнестойкости несущих и ограждающих конструкций
со значениями времени от начала пожара до окончания воздействия критических
температур tп:
– для перегородки: Пп=60 мин < tп=102 мин;
– для фермы покрытия: Пф=45 мин < tф=160 мин;
– для колонны: Пк=30 мин < tк=160 мин;
Таким образом, существует угроза обрушения несущих конструкций.
4. Предварительное планирование боевых действий членов
добровольных противопожарных формирований по тушению пожара первичными
средствами пожаротушения в помещении
4.1 Определение резерва времени для работы со средствами
пожаротушения
При организации действий членов добровольных противопожарных
формирований (членов ДПД) на предприятиях необходимо определить время. в
течение которого пожарные добровольцы могут без угрозы для жизни и здоровья
действовать по тушению пожаров (загораний) в определенном помещении.
ГОСТ 12.1.004–91 «Пожарная безопасность. Общие требования.» содержит
положение о том, что эвакуация людей, (характеризуется расчетным временем
эвакуации tр) должна быть завершена до наступления минимального критического
значения опасных факторов пожара (необходимого времени эвакуации tнб). Кроме этого необходимо
учитывать время, затраченное на приведение в действие средств пожаротушения (1
минута).
Таким образом, резерв времени для работы со средствами
пожаротушения – это время, в течение которого члены добровольных
противопожарных формирований могут без риска для жизни и здоровья действовать
по тушению пожаров (загораний) после введения первичных средств пожаротушения.
Резерв времени для работы со средствами пожаротушения определяется
по формуле:
(24),

4.2 Определение площади зоны риска
Зона риска – зона, возникновение пожара в которой может осложнить
ситуацию в целом: повысить динамику нарастания опасных факторов пожара,
блокировать эвакуационные выходы, эвакуацию людей и средства пожаротушения.
Зона риска зависит от размещения пожарной нагрузки.
Площадь зоны риска можно определить по формуле для расчета площади
пожара (рассматривается круговая форма распространения пожара, так как в этом
случае динамика нарастания площади пожара будет максимальной и как следствие
площадь зоны риска также принимает максимальное значение:
(25),
где lф – расстояние, пройденное фронтом горения за время свободного
развития пожара, м;
Расстояние, пройденное фронтом горения за время свободного
развития пожара, определяется по формуле:
, (26),
где vл - линейная скорость распространения пожара, м/мин. vл=0,48 м/мин;
τ – время, затраченное членами ДПД на приведение в действие
средств пожаротушения (1 мин.). С учётом времени обнаружения пожара (tнэ=0,5 мин) τ=1,5 мин.
По формуле (26):

По формуле (25):

4.3 Выбор и определение необходимого количества средств
пожаротушения
На начальной стадии развития пожара имеется возможность тушения
(локализации) пожара членами добровольных противопожарных формирований с
помощью огнетушителей и установленных на объекте пожарных кранов.
4.3.1 Выбор и определение необходимого количества огнетушителей
дли тушения пожара
При определении площади зон риска была определена площадь пожара
на момент введения средств пожаротушения членами добровольных противопожарных
формирований. Учитывая технические характеристики огнетушителей выбирается тип
и необходимое количество огнетушителей для тушения пожара исходя из условия:
Sп<S0т·n (27),
где Sп – площадь пожара на момент введения средств пожаротушения, м2;
S0т – огнетушащая способность огнетушителя, м2; Для
данного помещения выбираем огнетушитель ОВП-5. Для данного типа огнетушителя по
прил. 3 ист. [7] определяем: S0т=1,43 м2.
n – количество огнетушителей.
Из формулы (27) следует:
(28),

Принимаем 2 огнетушителя ОВП-5.
4.3.2 Выбор и определение необходимого количества пожарных кранов
для тушения пожара
Для того чтобы определить необходимое количество пожарных кранов, задействованных
членами добровольных противопожарных формирований для тушения пожара, следует рассчитать
требуемый расход огнетушащих средств.
Требуемый расход огнетушащих средств для локализации пожара
определяется по формуле:
(29),
где Sлок п – площадь локализации на момент введения членами
добровольных противопожарных формирований стволов от пожарных кранов на тушение
пожара, м. Sлок п=1,62м2;
Iтр - интенсивность подачи огнетушащих средств, л/м2с. По
прил. 3 ист. [7] определяем: Iтр=0,2 л/м2с.;

Определяем фактический расход Qф огнетушащих средств (по прил.
3 ист. [7]), исходя из технических характеристик имеющихся на объекте пожарных
кранов: Qф=29,3 л/с.
Т.к. условие Qф=29,3 л/с > Qтр=7,04 л/с
соблюдается, то выполняется условие локализации пожара, средств пожаротушения
достаточно для его ликвидации. Таким образом, для ликвидации пожара на
расчётной площади зоны риска достаточно одного пожарного крана.
4.4 Определение количества и порядка действий членов добровольных
противопожарных формирований при тушении пожара
Добровольные пожарные дружины (далее-ДПД)
создаются в соответствии с федеральным законом «О пожарной безопасности»
(статья 13) и НПБ 201–96 «Пожарная охрана предприятия. Общие требования» на
предприятиях, в учреждениях и организациях независимо от их
организационно-правовых форм и форм собственности. Ответственность за создание
и организацию работы ДПД возлагается на собственников предприятий (работодателей).
ДПД создаются на предприятиях в целях обеспечения соблюдения требований
действующих норм и правил пожарной безопасности, приказов и распоряжений
собственников предприятий (работодателей), проведения мероприятий по
предупреждению и тушению пожаров.
Расстановка членов ДПД и порядок их действий:
– 1 член ДПД сообщает о пожаре;
– 1 член ДПД выделяются для отключения электроснабжения;
-1 член ДПД располагается у выхода из помещения
для того, чтобы
информировать членов ДПД, производящих тушение пожара об окончании
резерва времени для работы со средствами пожаротушения;
-1 член ДПД прокладывает рукавную линию со стволом
и работает по
тушению пожара (работает с огнетушителем);
-1 член ДПД открывает вентиль пожарного крана и затем
работает
подстволыциком по тушению пожара (работает с огнетушителем).
При этом необходимо учитывать медицинские противопоказания.
5. Графическая часть

Рис. 3.1 График температурного режима при пожаре в помещении
Выводы
1. Используя результаты вычислений, полученные при определении
необходимого и расчётного времени эвакуации, делаем вывод, что расчётное время
эвакуации людей из помещения tр=1,32 мин меньше необходимого времени
эвакуации tнб=3,8 мин, следовательно, угрозы людям нет.
2. Используя результаты вычислений, произведённые в разделе 3.2.
«Определение возможности распространения пожара и оценка устойчивости строительных
конструкций здания», делаем вывод, что предел огнестойкости металлических
колонн и ферм покрытия меньше времени от начала пожара до окончания воздействия
критических температур, следовательно, существует угроза обрушения несущих
конструкций. Увеличение пределов огнестойкости строительных конструкций
достигается в результате их огнезащиты.
– огнезащита металлических колонн и балок. Для
огнезащиты металлических конструкций применяют тяжёлые материалы (бетон, кирпич
и т.п.), лёгкие бетоны, огнезащитные штукатурки и покрытия. Для обеспечения
необходимого предела огнестойкости несущих колонн данного помещения
целесообразно увеличить толщину слоя огнезащитного покрытия ОВП до 25 мм,
что увеличит предел огнестойкости до 120 мин.
3. Используя результаты вычислений, произведённые в разделе 4 «Предварительное
планирование боевых действий членов добровольных противопожарных формирований
по тушению пожара первичными средствами пожаротушения в помещении», делаем
вывод, что резерв времени для работы со средствами пожаротушения членами ДПД
составляет 3,3 мин, что меньше времени наступления первого из ОФП – в
данном случае потере видимости (происходит на 4-й минуте после начала пожара).
Таким образом, возможно тушение пожара членами ДПД без угрозы для их жизни и здоровья
в пределах резерва времени на работу с первичными средствами пожаротушения.
В качестве первичных средств пожаротушения в складском помещении №2
возможно применение огнетушителей и подача воды от внутренних пожарных кранов.
В соответствии с п.п 7, 10 прил. 3 ППБ 01–03, а также учитывая
технические характеристики огнетушителей для данного объекта были выбраны
огнетушители ОВП-5 в количестве 2 шт.
Рекомендации по использованию огнетушителя ОВП-5:
При тушении пожара необходимо:
– за ручку поднести огнетушитель к месту
пожара с наветренной стороны;
– выдернуть чеку и направить раструб на очаг
пожара;
– нажать на ручку запуска;
– в
рабочем положении огнетушитель следует держать строго вертикально, не наклоняя
его и не переворачивая.
Запрещается
применять огнетушитель ОВП-5 для тушения пожаров на электроустановках,
находящихся под напряжением. Перезарядку проводить один раз в год.
При подаче воды на тушение от внутренних пожарных кранов
необходимо:
– обесточить помещение (установку);
– осуществлять первоочередную подачу воды на решающем
направлении (в данном случае – не допустить распространения пожара в смежные со
складом помещения);
– обеспечивать подачу воды непосредственно в очаг пожара с
соблюдением правил охраны труда;
– охлаждать при необходимости несущие конструкции;
Литература
1.Федеральный закон «О пожарной безопасности». – М.:
2004.
2.ГОСТ 12.1.004 -91 «Пожарная безопасность. Общие
требования». - М.: 1992.
3.ГОСТ Р 12.3.047 – 98 «Пожарная безопасность
технологических процессов. Общие требования. Методы контроля». – М.: 2000.
4.ППБ – 01 – 03 «Правила пожарной безопасности в
Российской Федерации». – М.: 2003.
5.НПБ 201–96 «Пожарная охрана предприятий. Общие требования».
– М.: 1996.
6.СНиП 2.04.01 – 85 «Внутренний водопровод и канализация
зданий». – М.; 1985.
7.И.А. Лобаев и др. Государственный пожарный
надзор: Методические указания к выполнению курсового проекта – М.: Академия ГПС
МЧС России, 2004. – 40 с.
8.Л.А. Коротчик и др. Пожарно-технический
минимум: методическое пособие для руководителей и ответственных за пожарную
безопасность на предприятиях, в учреждениях и организациях – М.: Институт риска
и безопасности, 2004. – 2-е изд., стер. – 384 с.
9.М.Я. Ройтман Пожарная профилактика в
строительном деле: учебник – М.; ВИПТШ, 1975.-524 с.