Курсовая работа: Комплексная механизация молочной фермы
Введение
Моя ферма по содержанию
молочного стада коров располагается в Московской области, Солнечногорского
района. Она рассчитана на поголовье в 150 коров и небольшого ремонтного
поголовья телочек (28 голов). Цель хозяйства – получение молока высокого
качества в большом количетсве.
Молокопродуктивность, как
известно, зависит от массы факторов. Поэтому необходимо обеспечивать
благополучие животных.
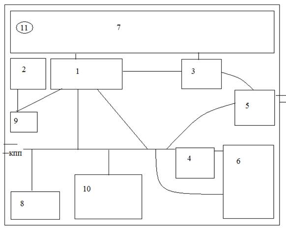
План фермы

1-коровник, 2-телятник,
3-доильный зал, 4,6-кормохранилища, 5-отсек хранения молока, 7-луг,
8-навозохранилище, 9-ветпункт, 10-хозяйственная постройка, 11-водонапорная
башня.
КПП должно быть
оборудовано в соответствии с санитарно-зоогигиеническими требованиями. Возможно
оборудование второго КПП сзади отсека хранения молока для более удобного вывоза
его с фермы.
Луг предназначен для
моциона животных, а не для выпаса, так как содержание коров будет стойловым
привязным, а для процесса молокообразования необходимо движение, обеспечивающее
более интенсивный ток крови через вымя.
Хозяйственная постройка
предназначена для внутрифермового транспорта. Так же там могут располагаться
административные помещения.
Ветпункт должен
соответствовать требованиям санитарно-гигиенических правил. Необходимо своевременно
заботиться о плановой вакцинации животных (покупка вакцин и т.д.).
Остальные компоненты фермы
будут рассмотрены в проекте отдельно.
Коровник для содержания
дойного стада
Молочное стадо коров в
размере 150 голов содержится привязно. Каждый бокс оборудован привязью, поилкой
и местом под кормление.
Оборудование стойловое для
коров ОСК-Ф-27
| № п/п |
Параметр |
Ед. изм. |
ОСК-Ф-27 |
| 1 |
Количество коров, подлежащих
одновременной отвязке |
голов |
27 |
| 2 |
Количество поилок |
шт. |
14 |
| 3 |
Ширина станка |
мм |
1100 |
| 4 |
Масса |
кг |
690 |


1 – стойка ОСМ.27.100
2 – стойка ОСМ.00.530
3 – трубка Ц-Р40х3,0х6100
4 – ограждение ОСМ.27.801
5 – кронштейн ОСМ.27.020
6 – кронштейн ОСМ.00.819
7 – привязь ОСМ.27.010
8 – ошейник ОСМ.27.040
9 – петля ОСМ.27.080
10 – труба ОСМ.27.802
11 – рукоятка ОСМ.27.030
12 – фиксатор ОСМ.27.050
13 – скоба ОСМ.27.601
14 – зажим ОСМ.27.401
15 – муфта Ц 40 ГОСТ
8954-75
16 – колпак Ц 40 ГОСТ
8962-75
17 – угольник 900-1-Ц40
18 – труба ОСМ.00.815
19 – зажим III- 48х48 Ц 15
хр
20 – скоба ОСМ.27.402
21 – поилка индивидуальная
ПА.3.010
22 – стойка ОСМ.00.803
23 – скоба ОСМ.00.638
Поилка с подводом воды
1 – стойка ОСМ.00.530
2 – кронштейн ОСМ.00.474
3 – скоба ОСМ.00.638
4 – гайка М10-6Н
ГОСТ5915-70

5 – труба ОСМ.00.816
6 – угольник 900-1-Ц20
7 – поилка ПА.3.010
8 – прокладка ОСМ.27.004
9 – скоба ОСМ.00.462
10 – основание ОСМ.00.402
11 – скоба ОСМ.00.632
12 – болт М10 – 6g х 25
ГОСТ 7798-70
13 – шайба 1065Г ГОСТ
6402-70
Чаша поилки ПА.3.010

1 – угольник ПА.155
2 – прокладка ПА.007
3 – клапанный механизм
ПА.020
4 – ось ПА.623
5 – рычаг ПА.3.457
6 – чаша ПА.3.101
7 – кронштейн ПА.3.456
8 – кронштейн ПА.3.456-01
Привязь
1 – привязь ОСМ.27.010
2 – ошейник ОСМ.27.040
3 – петля ОСМ.27.080
4 – цепь ОСМ.27.070
5 – скоба ОСМ.27.090
6 – гайка М10-6Н ГОСТ
5915-70
7 – шайба 1065Г ГОСТ6402-70

С учётом поголовья, общая
протяженность боксов будет следующей:
1) коровы стоят по обе
стороны коровника, то есть с одной стороны стоит 150/2=75 гол.
2) общая ширина боксов с
одной стороны будет составят 1100*75=82,5 м
Общий вид коровника будет
следующим:

Коровник для коров
привязного содержания: 1 - стойловое помещение: 2 - помещение для подстилки; 3
- фуражная; 4 - инвентарная; 5 - тамбур; 6 - помещение навозоудалекия; 7,8 -
венткамеры.
Телятник
Поскольку ферма является
товарной, ее главная задача – получение молока. Ремонт стада осуществляется как
за счет телят, полученных от коров на ферме, так и благодаря покупке животных у
других фермеров и в племенных хозяйствах. Поэтому телятник, находящийся на
террирории хозяйства рассчитан на небольшое число животных (28 голов). Телочки,
не отобранные для ремонта стада, а так же бычки сдаются в районный
мясокомбинат.
Так как телят на ферме
небольшое количество, то можно укомплектовать помещение более качественным и,
следовательно, дорогим оборудованием.
Для этой цели я выбрала
люксы для телят фирмы Terborg Agro.
Преимущества люксов:
Альтернатива холодному
содержанию телят
Быстрый монтаж и уборка
Повышенная надежность
конструкции
Оптимальная вентиляция
Легкий доступ к телятам
для кормления и лечения
Полная изоляция телят друг
от друга
Быстрый переход к
групповому содержанию
Стандартные размеры:
Ширина стойла по
центральной оси: 91,4см, 106,7 см, 121,9 см
Длина боксов: 182,9 см, 243,8 см
Высота панелей: 104,1 см, 129,5 см

Таким образом общая длина
телятника получается: 28/2*121,9=17 м
Для лучшего
психологического состояния животных, а так же для индивидуального наблюдения за
маленькими телочками, кормление, поение и уборка в телятнике осуществляется
вручную персоналом.
Доильный зал
Для своей фермы я выбрала
доильный зал типа «Тандем» (система доильного зала AutoTandem - Westfalia). В
этом зале присутствуют следующие отличительные достоинства:
Оптимальный обзор
животного
Каждому животному –
максимум внимания
Спокойные животные
Оптимальная позиция
животного по отношению к доярке
Равномерная нагрузка на
доярку
Высокая степень загрузки
аппаратов
Меньшие потери времени на
каждое доильное место благодаря отдельной смене животных
Возможность разного
расположения отдельных боксов
В любое время может быть
расширен
Прочная конструкция
Функционирование
После того, как корова
была зарегистрирована световым элементом, автоматически закрываются центральные
входные ворота в доильный зал, и корова проходит к свободному доильному боксу.
Как только корова встает вдоль доильной ямы, можно надевать доильный аппарат.
После окончания доения автоматика снятия мягко стягивает доильный аппарат с
вымени. Выходная калитка доильного бокса, управляемая системой, открывается,
чтобы животное могло покинуть бокс. Выходная калитка автоматически закрывается.
Когда наступает время для подхода следующей коровы - процесс повторяется
сначала.
Опции
Отдельные боксы могут
монтироваться не только по обе стороны доильной ямы, но и, например, в виде
буквы L или U или вообще только как односторонние доильные залы. При этом
сохраняются все преимуществ доильной техники. Компактная доильная единица
MultiBoard: надежное расположение всей электроники, трубопроводов снабжения и
элементов управления в чистоте и безопасности.

Для выбора охладительной
установки, нам необходимо рассчитать общие надои молока.
1) средняя продуктивность
коров 6000 л молока за лактацию; лактация длится 10 месяцев (10 мес*30 дн=300
дн). То есть среднесуточный удой составляет 6000/300=20 л/дн
2) стадо дойных коров
имеет численность 150 голов. Значит, среднесуточный удой от всего стада
составляет 20*150=3000 л
Одновременно лактировать
все 150 коров не будут. Часть из них всегда будет находиться в сухостойном
периоде. Однако прогноз молочной продуктивности зависит не только от поголовья,
но и удоев (возможно появление коров-рекордисток) и от продолжительности
лактации, которая может затянуться по ряду причин. Из-за того, что прогноз
довольно условных, лучше применять охладитель молока для большего его объема,
чем было рассчитано.
Для своей фермы я выбираю
охладитель FIRST.SC (Groupe Serap). Его объем может составлять от 2060 до 8000 л молока.
Цистерна
Самоподдерживающаяся
закрытая емкость цилиндрической формы с двойной рубашкой. Конструкция типа
«Сандвич» с высокоплотной изоляцией без CFC и стенками из аустенитной
нержавеющей CTannAIS! 304. Испаритель полного потока.
Регулируемые опоры из
нержавеющей стали, смонтированные без термического моста.
Оснащение
Люкдиам. 450 мм, два отверстия для наполнения и вентиляции диам. 76 мм (возможность менять местами отверстие
для наполнения и вытяжную трубу). Измеритель температуры расположенный на
передней панели.
Сливной патрубок диам. 51 мм с резьбой DIN (другие варианты по заказу) с краном.
Перемешивание и гомогенизация
Электродвигатель с
понижающим редуктором (25 об/мин). Программируемый цикл автоматического
перемешивания. Равномерное распределение жира в молоке в течении 2 минут в
соответствии с нормой ISO 5708.
Холодильное оборудование
Холодильный агрегат (агрегаты)
с компрессором (компрессорами) герметичного типа, мощность которого подбирается
в соответствии с требуемыми эксплуатационными качествами (норма ISO 5708).
Регулировка охлаждения производится с помощью термостатических регулирующих
вентилей (ТРВ), Каждая модель может быть установлена (обращайтесь к нам за
информацией по доставке):
компактная версия (до
2x6,5 л,с.)
с выносным конденсатором и
компрессором на цистерне (отЗ л.сдо2х12 л.с.)
с выносным холодильным
агрегатом (полный комплект)
без холодильного агрегата.
Хладагент R 22 или R 404A.
Дополнительное
оборудование
Встроенная автоматическая
система промывки WASH 1010 (см. техническое описание WP-1K-R15)
Лестница доступа к люку
Тарирование емкости
Система защиты компрессора
и контроля за переохлаждением молока.
Дополнительное устройство
для последующей установки рекуператора тепловой энергии.
Рекуператор тепла SERATEMP
Тепловое реле для защиты
компрессора
Возможность
принудительного включения холодильного агрегата
Кабель электропитания 5 метров
Плиты увеличения опорной
поверхности
Скорость перемешивания до
21 об/мин
Резьба сливного патрубка
по заказу
Нормы
Соответствует
международной норме ISO 5708 и европейской норме EN 13732, соответствует
европейским директивам ЕС. Система измерения одобрена Службой Метрологии
Франции.

Обеспечение кормления
Кормление играет, пожалуй,
наиважнейшую роль в жизнедеятельности организма. Это означает, что на здоровье
и продуктивности (количестве и качестве молока) сказывается в первую очередь
именно кормление. По данным российских исследований это влияние составляет
60-70% от общего влияния всех паратипических условий.
Именно поэтому при
обустройстве кормохранилищ и кормоцехов на молочной ферме, большое значение
следует придать нормам проектирования и качеству механизации.
1) Ежедневное потребление
корма молочными коровами составляет 50 кг, значит, поголовье в 150 коров за сутки съест 50*150=7500 кг
2) запас кормов на зиму
должен составлять 7500*365=2737,5 т
Примерный рацион молочной
коровы
| Корм |
Потрбеление (гол/сут) |
Потребление всем стадом |
Потребление стадом за 6
мес(180 дн), т |
| сено |
5 |
750 |
135 |
| солома |
2 |
300 |
54 |
| сенаж |
4 |
600 |
108 |
| силос |
16 |
2400 |
432 |
| концентраты |
3 |
450 |
81 |
| корнеклубнеплоды |
20 |
3000 |
540 |
| итого |
50 |
7500 |
1350 |
Кормохранилища
рассчитываются из условия хранения полугодового запаса кормов. Оборудуются
соответственно с правилами и условиями хранения того или иного корма.
Для раздачи кормов
выбирается кормораздатчик.
Кормораздатчик-смеситель
Keenan Klassik, позволяет получать высококачественные полнорационные
кормосмеси. Однородные, хорошо перемешанные смеси с большим содержанием
эффективных волокон и клетчатки и высоким параметром пережевываемости
способствуют улучшению здоровья коров и повышению их продуктивности.

| Обозначение |
Размер |
Модель |
| 80 |
100 |
11.5 |
140 |
170S |
200 |
| А |
Общая длина |
506 мм |
506 мм |
606 мм |
606 мм |
606 мм |
706 мм |
| В |
Длина бункера |
300 мм |
300 мм |
400 мм |
400 мм |
400 мм |
500 мм |
| С |
Общая ширина |
260 мм |
275 мм |
260 мм |
275 мм |
310 мм |
310мм |
| D |
Ширина бункера |
230 мм |
254 мм |
230 мм |
254 мм |
285 мм |
285 мм |
| E |
Общая высота |
240-280 мм |
250-300 мм |
250-290 мм |
260-300 мм |
300-330 мм |
310-330 мм |
| F |
Высота погрузки |
210-250 мм |
220-260 мм |
230-270 мм |
230-280 мм |
260-300 мм |
280-300 мм |
| G |
Ширина колеи |
200-230 мм |
210-230 мм |
200-2300 мм |
210-230 мм |
240-270 мм |
240-275 мм |
|
|
Тип раздачи |
Стандартный лоток |
Стандартный лоток |
Стандартный лоток |
Стандартный лоток |
Стандартный лоток |
Стандартный лоток |
|
|
Вес (без загрузки) |
4100 кг |
4300 кг |
4250 кг |
5600 кг |
7500 кг |
8200 кг |
|
|
Регулирование подачи
корма |
+ |
+ |
+ |
+ |
+ |
+ |
|
|
Количество датчиков
нагрузки |
4 |
4 |
4 |
4 |
4 |
4 |
|
|
Электронное взвешивание |
В стандартном исполнении
дискретность 5 кг |
В стандартном исполнении
дискретность 5 кг |
В стандартном исполнении
дискретность 5 кг |
В стандартном исполнении
дискретность 5 кг |
В стандартном исполнении
дискретность 5 кг |
В стандартном исполнении
дискретность 5 кг |
Навоз и его удаление
Навозоудаление и
переработка навоза является одной из сложнейших задач при проектировании фермы.
Важность этого процесса заключается в обеспечении как санитарного благополучия
самого хозяйства, так и экологической обстановки в районе. Именно поэтому важно
правильно подобрать навозоудалительную систему и выбрать оптимальный способ
утилизации и переработки навоза.
Для уборки навоза из своей
фермы я выбрала скреперную систему.
Преимущества
комби-скрепера:
тщательная очистка
способствует улучшению качества молока;
достигается экономия на
строительных расходах благодаря простой установке;
комбискрепер изготовлен из
прочных материалов, что обеспечивает надежность и долгий срок службы
Комбискрепер
"JOZ" предназначен для уборки помещений с бетонными полами; это могут
быть:
ровные бетонные полы,
наклонные бетонные полы,
бетонные полы с маленькими
каналами для отвода жидкости.
На неровных бетонных полах
(с плоскими уступами небольшой высоты) комби-скрепер может успешно работать
после проведения несложной настройки. При использовании сменных накладок из
синтетической резины комбискрепер очищает пол еще лучше.
"Green Label"
Для соблюдения требований
нормативов охраны окружающей среды, возникает необходимость в использовании
оборудования, в которых жидкая и твердая фракции навоза удаляются отдельно. В
результате этого, выделение аммиака снижается до минимума. "JOZ"
получило одобрение "Green Label", так как система комби-скрепера,
пригодная для работы с наклонными полами, полами с покрытием и полами с
каналами для отвода жидкости.
Технические
характеристики:
комби-скрепер: материал -
сталь; высота 210 мм;
электродвигатель:
0,55/0,75 кВт; однофазный или трехфазный;
устройство привода:
мотор-редуктор, обороты выходного вала 5.4 об/мин.
скорость перемещения
скрепера: 4 м/мин;
натяжной ролик: диаметр 290 мм, износостойкий сплав чугуна с валом из закаленной стали;
панель управления:
стандарт безопасности E.C., с настраиваемым таймером, ручным отключением;
приводной элемент 1: цепь 13 мм стандартной конструкции, прочность на разрыв 7000 кг;
приводной элемент 2: трос
Ø6 или Ø8 мм с пластиковым покрытием толщиной 1мм
Сброс на решетку.
При работе на бетонном
полу навоз необходимо переместить в конец коровника, где он попадает в канал.
Если двор слишком длинный, канал может находиться в середине коровника. В
большинстве таких случаев комби-скрепер продвигает навоз через решетку над
каналом. Не весь навоз пройдет в канал через решетку; длинная солома и силос не
пройдут и останутся на решетке.
Принципиальная схема
скреперного навозоудалителя выглядит следующим образом:
привод,
устройство поворотное,
ползун,
скребок левый,
скребок правый,
цепь,
щит управления,
кнопка "Аварийный
стоп".

После удаления навоза из
коровника, его следует траспортировать в навозохранилище.
При механизированной
системе удаления навоза последний на ленточном транспортере доставляется
непосредственно из хлева на площадку. Зоны хранения навоза в хлеву и на
площадке следует располагать на одной оси. С целью совершенствования
производственного процесса в настоящее время все чаще используют хлева без
применения соломенной подстилки, что позволяет внедрять способ удаления навоза
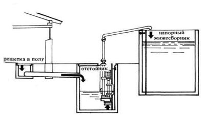
в виде навозной жижи. Для этого навоз собирают в помещениях хлева под полом или
же в жижесборниках, располагаемых вне хлева (рис. 6).
Жижесборник устраивается
из бетона или фасонных камней. Наиболее экономичны при строительстве напорные
жижесборники круглой или квадратной в плане формы. Перед жижесборником в
систему удаления навоза подключается отстойник. Размеры жижесборников
устанавливаются, исходя из поголовья скота и продолжительности хранения навоза.


1. Открытые лотки с
уклоном, устраиваемым в коровниках; длина до 10 м. 2. Навозная площадка со стоком для навозной жижи. 3. Ввод открытого лотка в отстойник,
предназначенный для осаждения дурно пахнущих веществ. 4. Кирпичный или бетонный
жижесборник с отдельными отсеками и отверстиями для откачки жижи в
железобетонной крышке. 5. Жижесборник в виде группы секций, выложенных из
фасонных камней и размещенных в общей железобетонной обойме, с переливами из
секции в секцию. 6. Напорный жижесборник системы Бауэра. Преимущества: простота
установки на скальных грунтах и при высоком уровне грунтовых вод. Возможность
отказа от крышки, рассчитываемой на проезд по ней средств транспорта, снижает
стоимость сооружения. 7. Вспомогательные операции для приготовления навоза по
способу Кранца. Навоз наслаивается отдельными кучками. Благодаря возведению
отсеков высотой до 3 м создается экономичное навозохранилище. 8. Навозная яма
для создания запаса удобрений. Каждый месяц навоз складируется на отдельных
участках и вывозится только после созревания. 9. Крытое навозохранилище с
подачей навоза из хлева по подвесной дороге. 10. Основные формы навозохранилищ
с обслуживанием наземными транспортными средствами, по Кордсу. М 1: 800. а—
вывоз с одной продольной стороны, ширина навозохранилища 2,5 м (максимально допустимая при погрузке с одной стороны); б— вывоз с обеих продольных сторон,
ширина навозохранилища удвоенная (2,5 х 2); e— вывоз по средним проездам,
ширина навозохранилища— учетверенная (2,5 х 4); г — навозохранилище с угловыми
проездами. 11. Обслуживание навозохранилищ подвесной дорогой с поворотными
кругами или переводными стрелками.

Потребная ёмкость
навозохранилищ (данные из справочника Попечительского совета
сельскохозяйственной техники)
| Вид жижесборников и
навозохранилищ |
Потребность в м3 на
хранение навоза в течение двух месяцев в расчете на 1 гол. |
Потребность в м3 на
хранение навоза в течение двух месяцев в расчете на все стадо. |
| жижеприемник |
1 |
150 |
| Резервуары для смывания
навоза |
4 |
600 |
| Резервуар для сухого
навоза |
3 |
450 |
| Навозные площадки |
1 |
150 |
Водоснабжение
Для обеспечения молочной
фермы водой для различных целей, необходимо иметь свою систему водоснабжения.
Суточная норма потребления
воды
| Животные |
На одну голову (л/сут) |
На все стадо (л/сут) |
| коровы |
100 |
15000 |
| телята |
30 |
840 |
| Итого: |
15840 (16 тыс л/сут) |
Получение воды будет
вестись из артезианской скважины. Таким образом можно добиться более чистой
воды, в отличие от воды из естественных водоисточников (озер, рек и т.д.)
Далее вода по системе труб
будет поступать в водонапорную башню. Так она будет находится до востребования
и, к тому же, нагреваться. Бак башни должен соответствовать суточному
потреблению воды на ферме, то есть 16 тыс литрам.


Схема водонапорной башни: 1
- водопроводная сеть; 2, 5 - электрическая задвижка; 3 - обратный клапан; 4 -
подающе - отводящий трубопровод; 6 - трубопровод забора неприкосновенного
запаса воды; 7 - трубопровод забора регулирующего запаса воды; 8 - шатер; 9 -
переливная труба; 10 - грязевая труба; 11 - задвижка; 12 - руль управления
задвижкой; 13 - ствол башни; 14 - патрубки для присоединения пожарной техники;
15 - канализационная сеть.
Затем из водонапорной башни
вода по трубопроводу будет распределяться по ферме в необходимые места, включая
автопоилки животных, рассмотренные в пункте первом.
Заключение
Механизация и
автоматизация производства является важной стороной развития хозяйства, в том
числе и сельского. Благодаря этим процессам уменьшаются как затраты ручного
труда каждого отдельного работника, так и потребность в рабочих кадрах в целом
(при высокой степени механизации и автоматизации необходимость в рабочих руках
сводится к минимуму). В то же время возрастают требования к квалификации
работников.
При правильном подборе
механизмов и автоматов производства, возможно добиваться уменьшения
экономических затрат, в том числе денежных средств на единицу продукции.
К тому же механизированный
подход позволяет обеспечивать благополучие каждого животного на ферме, что
очень важно как с производственной точки зрения, так и с моральной.